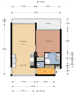
Apartment for rent: no longer available Victor van Vrieslandstraat in Haarlem

  • 60 m2
  • 2 rooms
  • ? Starting date
  • Indefinite period
On this page you will find all information of this Apartment in Haarlem. You can contact the advertiser if you have any questions.

Bemiddelingskosten
Nee
Object
Direct bij de eigenaar
Borg
970
Garantiestelling
Mogelijk
Huurtoeslag
Niet mogelijk
Inkomen eis
3,1 X Maandhuur Bruto
Huurtermijn
Onbepaalde termijn
Oplevering
Kaal

MORE

General information

City Haarlem
District/Neighbourhood: Anders
Register municipality: Yes
Status: Unfurnished
Housemates: None
Starting date: Ask the advertiser
Viewing In Consultation

Facilities

Private bathroom
Private kitchen
Private toilet
Private front door
Ask the advertiser
Ask the advertiser
Private living room
Show on map